
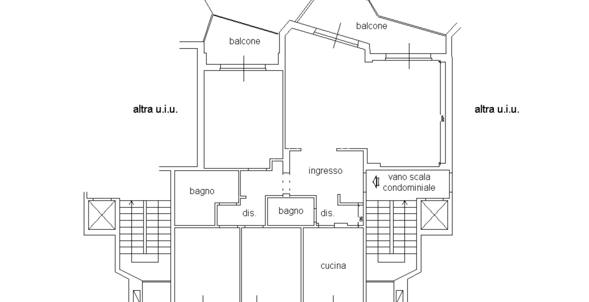
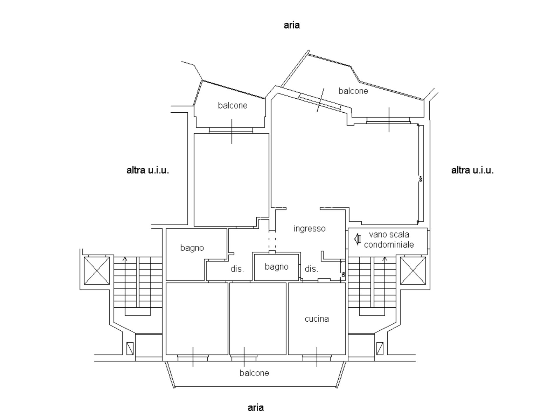
In contesto residenziale tranquillo e silenzioso, proponiamo in vendita appartamento ristrutturato con ampi spazi interni e godibile terrazza con vista mare. L’immobile si trova in zona Foce ed è composto da:
ampio salone, cucina abitabile, 3 camere da letto, 2 bagni, terrazzo vivibile con vista mare e cantina.
Piano alto, luminoso, ottima esposizione. Contesto riservato, ideale per chi cerca tranquillità senza rinunciare alla comodità dei servizi.
Possibilità box auto (acquisto separato).
In trattativa
Riferimento
Tipo proprietà
Camere da letto
Bagni
Superficie (mq)
