
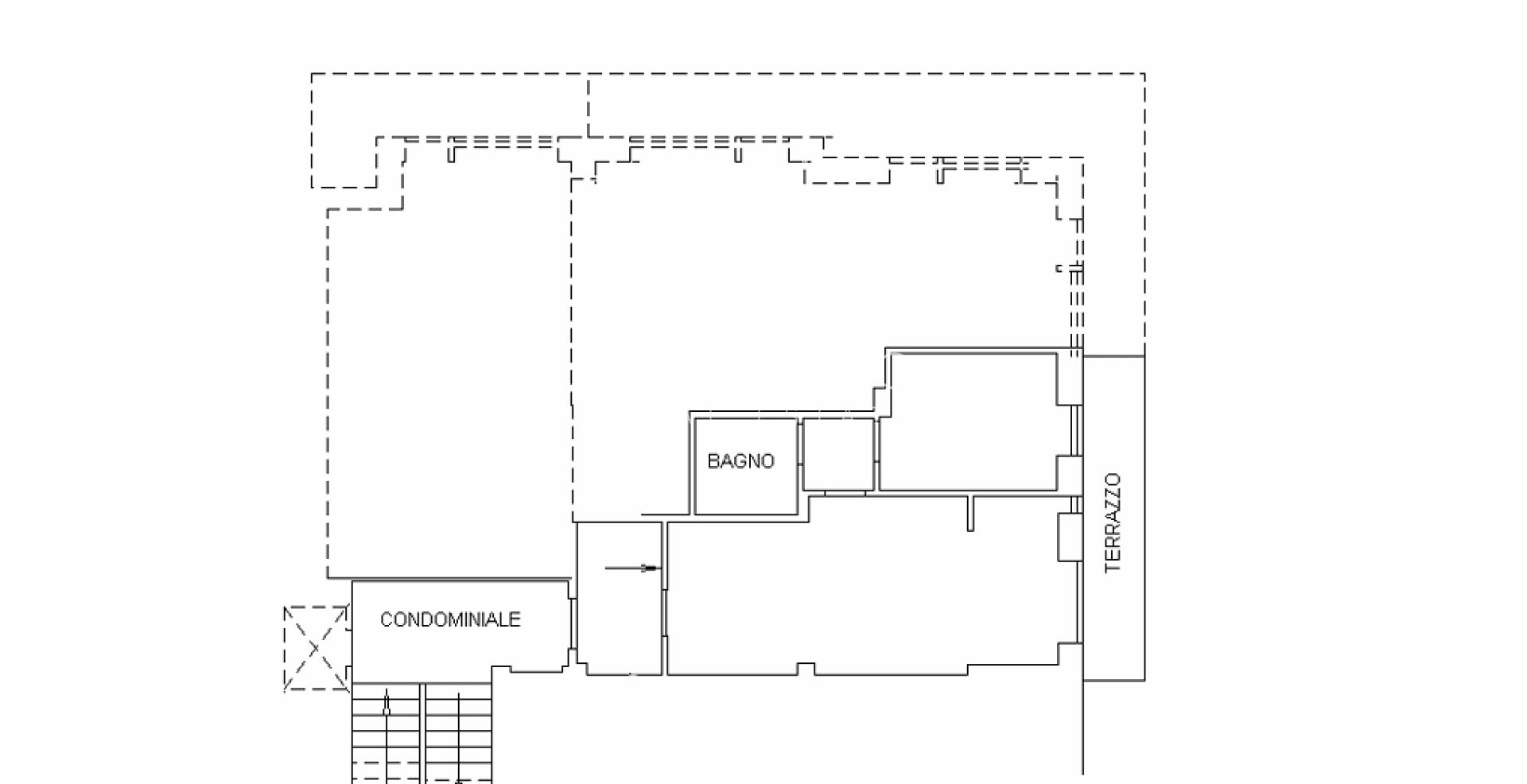
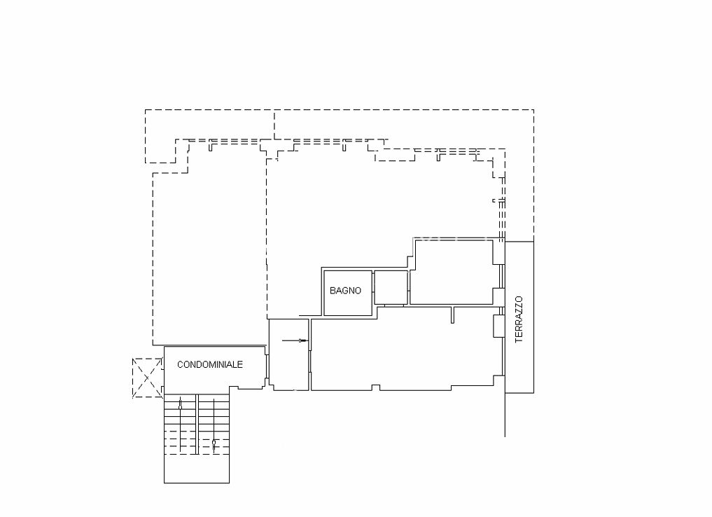
A pochi passi dal Casinò, in condominio signorile con servizio di portineria, proponiamo in vendita luminoso bilocale situato al 3° piano dotato di ascensore. L’appartamento, in buono stato, è composto da ingresso, soggiorno con angolo cottura da cui si accede al terrazzo, camera da letto e bagno.
La proprietà che è collocata in una posizione strategica è ideale anche come investimento grazie alla forte richiesta locativa nella zona.
Riferimento
Tipo proprietà
Camere da letto
Bagni
Superficie (mq)
