
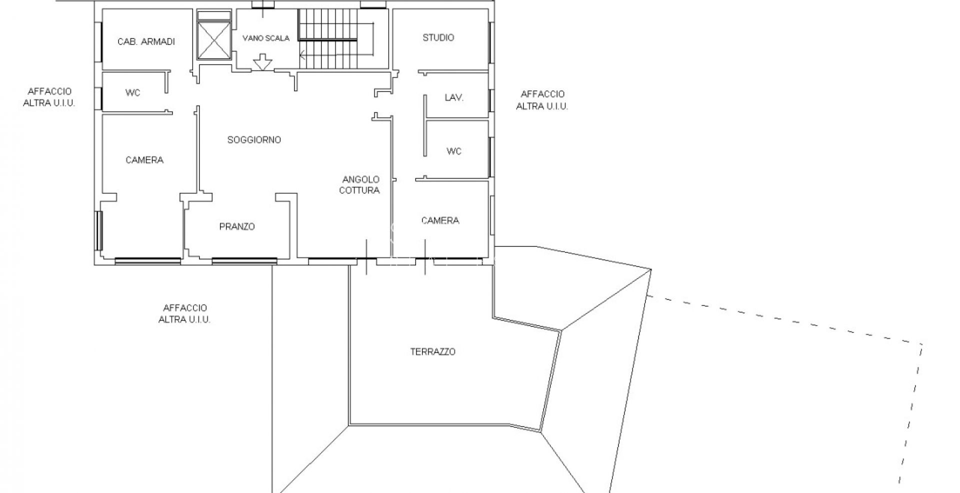
Attico con affaccio diretto sul mare, unico al piano, all'interno di palazzina composta da soli 2 appartamenti. La proprietà, avente una superficie di circa 140 mq., attualmente si compone di ampio ingresso sul luminoso salone con cucina a vista; nella parte ad ovest troviamo la camera padronale con bagno privato finestrato ed una spaziosa cabina armadi, il tutto caratterizzato da una splendida vista mare. Oltrepassando il salone si accede ad un'altra zona notte composta da 2 camere, ulteriore bagno finestrato e locale lavanderia. Il valore aggiunto della casa è dato, senza dubbio, dall'ampia terrazza aggettante sulla spiaggia sottostante dove, tra l'altro, la proprietà dispone anche di una cabina mare. Completa la proprietà posto auto privato.
Riferimento
Tipo proprietà
Camere da letto
Bagni
Superficie (mq)
